Quadrilocale in vendita

Milano, Via Giuseppe Meda - Meda Tibaldi
€ 518.000
Prezzo aggiornato
4 locali 4 locali
90 Mq 90 Mq
3 bagni 3 bagni

Quadrilocale in vendita

Milano, Via Giuseppe Meda - Meda Tibaldi

Descrizione annuncio

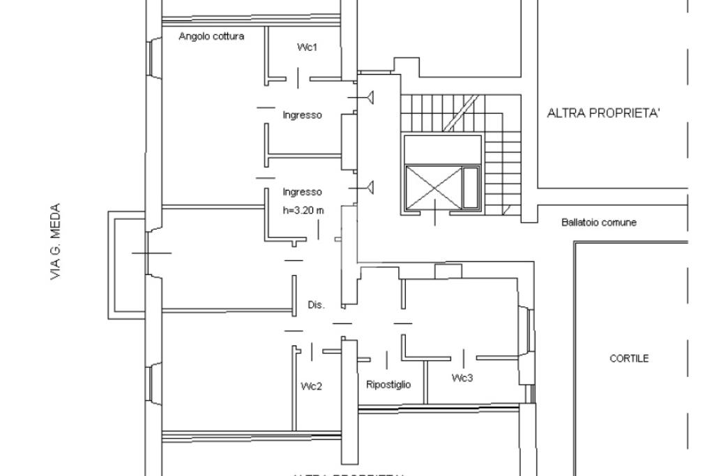
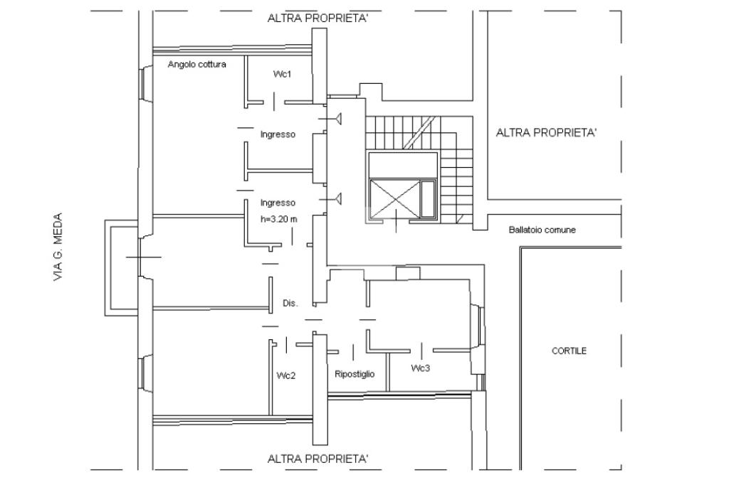
VIA GIUSEPPE MEDA:

in stabile d'epoca dotato di ascensore e corte interna, proponiamo al PRIMO piano un immobile che si presta a piu soluzioni.

Attualmente l'appartamento gode di DUE ingressi separati e l'attuale proprità ha sfruttato gli spazi creando due unità separate.

La prima è un monolocale composto da ingresso, zona giorno notte con cucina a vista e bagno con box doccia.

La seconda unità è dotata di igresso su un disimpegno, 3 camere da letto di cui una con balcone, 2 bagni e una zona cucina.

L'immobile è ideale per chi vuole un punto d'appoggio su Milano e allo stesso tempo avere una ottima rendita derivante dalla locazione delle 3 camere.

La sua metratura e la pianta regolare, permettono con qualche modifica di trasformare questo appartamento ideale anche per una famiglia, creando una zona giorno con cucina a vista, 3 camere da letto e 2 bagni.

La zona caratterizzata dalla presenza di tutti i servizi di prima necessità quali supermecati, banche, posta, scuole ecc.

Particolarmente comodo risulta il Tram 3 sotto casa, oltre alla 95 e il tram 15 a pochi passi.

Nello stabile sono in corso lavori di ristrutturazione di alcune parti comuni come ingresso, scale, porta lettere ecc.

Per ulteriori informazioni oppure fissare un appuntamento può contattarci anche tramite whatsapp.
Ogni agenzia ha un proprio titolare ed è autonoma - Le presenti informazioni non costituiscono elemento contrattuale

Mostra tutto

Nelle vicinanze

Trasporto pubblico Trasporto pubblico
Famagosta
Famagosta
870 m
Romolo
Romolo
990 m
Milano Porta Genova
Milano Porta Genova
1,7 Km
Milano Porta Romana
Milano Porta Romana
2,9 Km
Via Meda - Via Spaventa
Via Meda - Via Spaventa
100 m
Ricariche auto elettriche Ricariche auto elettriche
EnelX EVA+ IP Via La Spezia
470 m
Esselunga Famagosta
930 m
A2A Università Bocconi
1,3 Km
A2A Isola Digitale Bocconi
1,4 Km
LIDL Milano Cassala
1,6 Km
Scuole Scuole
Scuole
540 m
Scuola del Corpo di Polizia Locale
760 m
Domus Academy
820 m
Scuola primaria Bognetti
890 m
NABA – Nuova Accademia di Belle Arti Milano
910 m
Farmacia Farmacia
Farmacia
250 m
Farmacia Tibaldi
510 m
Farmacia Montegani Snc
600 m
Farmacia Montagna
640 m
Moncucco
770 m
Ospedali Ospedali
ospedale San Paolo
1,6 Km
Ospedale Gaetano Pini
2,1 Km
Casa di Cura La Madonnina
2,1 Km
Casa di cura "Città di Milano"
2,4 Km
Policlinico di Milano
2,5 Km
Supermercati Supermercati
Carrefour Market
400 m
Esselunga sottocasa Pezzotti
440 m
Esselunga
510 m
Sapore di mare
560 m
Ld
620 m
Negozi Negozi
Negozi
10 m
Carrefour Express
130 m
Kamal
210 m
Pescatore
530 m
Profumo di Pane
860 m
Bar Bar
Birrificio Brioschi
270 m
Rocket
350 m
Cool Morning
460 m
Bar
490 m
Papeete
540 m
Ristoranti Ristoranti
Ristoranti
100 m
Istanbul Taxim Uno
130 m
Tutta 'Nata Storia
130 m
Il Paquito
200 m
Fico d'India
210 m
Mostra tutto

Caratteristiche

Rif.:
61113648
Piano:
1 di 5 con ascensore (Piano medio)
Balconi:
1
Camere da letto:
3
Arredamento:
Completo
Condizionamento:
Autonomo
Mostra tutto
Prezzo Prezzo
€ 518.000
Rata mutuo Rata mutuo
€ 2.394 / mese
Spese annue Spese annue
€ 2.000
Proponi il tuo prezzoProponi il tuo prezzo

Classe Energetica

E
E
E
E
E
E
E
E
E
EP globale non rinnovabile:
122.00 kW h/m² anno
EP globale rinnovabile:
122.00 kW h/m² anno
EP invernale del fabbricato:
EP estiva del fabbricato:
Anno di costruzione:
1930
Riscaldamento:
Autonomo
Tipo impianto:
A radiatori
Tipo alimentazione:
Metano

Prezzo ridotto di €1 (99%%)

Ti interessa visionare l'immobile?

Fissa un appuntamento  Fissa un appuntamento

Richiedi informazioni

* Questi campi sono obbligatori

Calcola il tuo mutuo

Semplice e senza impegno
Anticipo

( % )
Mutuo

( % )

pochi semplici passi

inserisci i tuoi dati
Questionario completato
Grazie per aver richiesto un appuntamento senza impegno con un nostro Consulente del Credito e Assicurativo.

Hai inserito correttamente tutti i dati necessari e a breve riceverai una e-mail con un link da convalidare per inviare i tuoi dati.
Affiliato
Tecnosviluppo Tibaldi Sas
Viale Tibaldi, 24 20136 Milano (MI)

Il nostro staff


  • Cristian Fragale
    Affiliato

  • Federica Uva
    Coordinatrice
Viale Tibaldi, 24 20136 Milano (MI)
Zona: Bocconi - Meda - Tibaldi
Mostra su mappa
Orari: lunedì-venerdì 09:00-12:30 dalle 14:30-20:00; sabato 09:00-12:30 dalle 14:30-18:00; domenica su appuntamento.
Affiliato
Tecnosviluppo Tibaldi Sas
Viale Tibaldi, 24 20136 Milano (MI)

2025 Tecnocasa Franchising S.p.A. - P. IVA 08365160152 - Via Monte Bianco 60/A 20089 Rozzano (MI). Ogni agenzia ha un proprio titolare ed è autonoma. Privacy policy | Policy utilizzo | Cookie policy